IME, Inc. II

IDEAS UNLIMITED

 

October

    Design changes to our to our acrylic clock were made to make it easily 

manufacturability and to cut our expenses.  Dimensional Tolerances were added to setup drawings.

Changes since last time…
•New logo was added to repertoire.
•Material change from Ύ” to ½” acrylic.
•New through hole design for clock insert.
•New base design. (no adhesive)
•Inscription added to clock base.
•

 

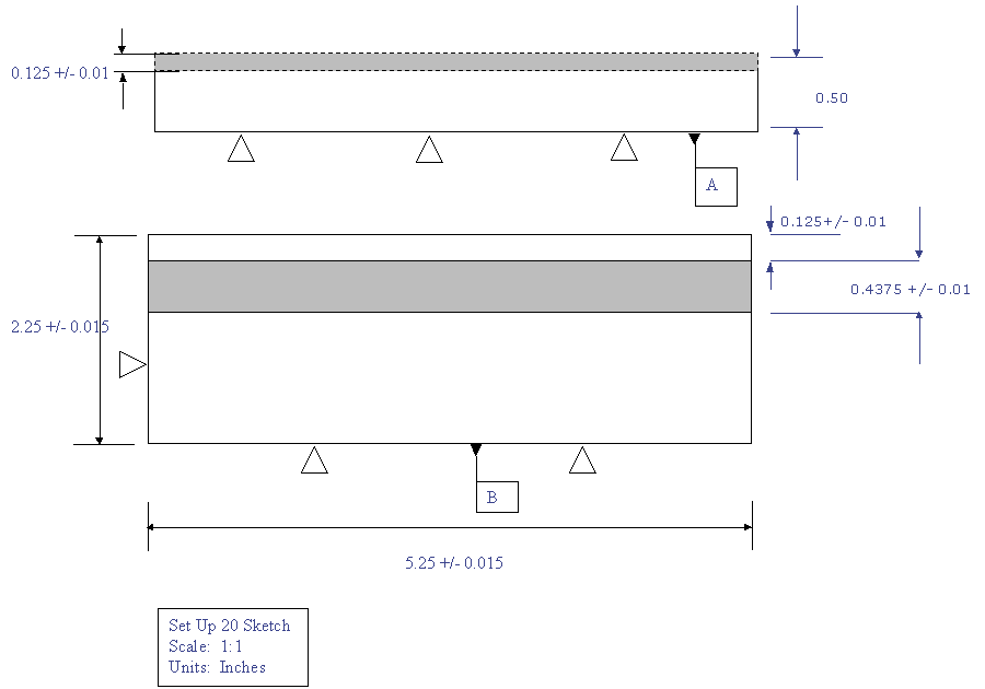
The following sketch shows the setup of the base in the vise and the cuts that are to be made.

 

 

The following is the sketch of the background of the acrylic clock.  

 


For problems or questions regarding this web contact [Project Email].
Last updated: December 11, 2001.